장기 (0) 엘카 2-3베드룸 플랫 전체 렌트 2300 pcm 11월 중순부터 (엘카역에서 5분거리 조용한 주택가)
페이지 정보
작성자
PostCode | SE11 4TF |
---|
본문
Great refurbished 2-3 bedroom flat with rear garden in Central London
This charming 2-3 bedroom ground floor flat is located in a quiet side street next to LCC/ Southbank University and Elephant & Castle station (2 minutes’ walk).
The flat has been refurbished and is perfect for people who are looking for a lovely place with great amenities, flexibility, outdoor space and great central location.
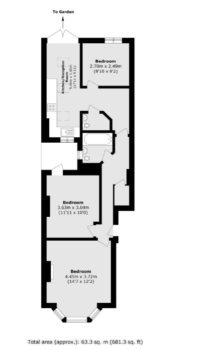
The flat has 3 separate rooms and a kitchen dining room at the rear and offers lots of flexibility: see floor plan for details
Option 1: it can be used as a 2 bedroom flat with large reception room and kitchen dining room at the rear
Option 2: it can be used as a 3 bedroom flat with kitchen dining room at the rear
The flat has been refurbished and has 1 full bathroom, 1 extra WC/utility room and 1 extra storage room.
The flat offers 680 sq. ft. of well-designed living space and also comes with a lovely rear garden to chill out or have a BBQ.
In addition it offers great amenities such as furniture, new combi boiler, EPC rating C, Council Tax Band C and many more.
The flat is available from 15th November 2025 (earlier availability needs to be confirmed yet)
Please arrange viewings via OpenRent or leave a message to 07990 655456 (kakao/whatsapp) with your brief introduction.
This charming 2-3 bedroom ground floor flat is located in a quiet side street next to LCC/ Southbank University and Elephant & Castle station (2 minutes’ walk).
The flat has been refurbished and is perfect for people who are looking for a lovely place with great amenities, flexibility, outdoor space and great central location.
The flat has 3 separate rooms and a kitchen dining room at the rear and offers lots of flexibility: see floor plan for details
Option 1: it can be used as a 2 bedroom flat with large reception room and kitchen dining room at the rear
Option 2: it can be used as a 3 bedroom flat with kitchen dining room at the rear
The flat has been refurbished and has 1 full bathroom, 1 extra WC/utility room and 1 extra storage room.
The flat offers 680 sq. ft. of well-designed living space and also comes with a lovely rear garden to chill out or have a BBQ.
In addition it offers great amenities such as furniture, new combi boiler, EPC rating C, Council Tax Band C and many more.
The flat is available from 15th November 2025 (earlier availability needs to be confirmed yet)
Please arrange viewings via OpenRent or leave a message to 07990 655456 (kakao/whatsapp) with your brief introduction.
비추천0
관련링크
댓글목록
등록된 댓글이 없습니다.