(0) 엘카 2-3베드룸 플랫 전체 렌트 2300 pcm 11월 중순부터 (엘카역에서 5분거리 조용한 주택가) > 런던 E/EC/SE

본문 바로가기

 <  숙박  <  런던 E/EC/SE

장기 (0) 엘카 2-3베드룸 플랫 전체 렌트 2300 pcm 11월 중순부터 (엘카역에서 5분거리 조용한 주택가)

페이지 정보

작성자 no_profile FantasticLondon 쪽지보내기 메일보내기 자기소개 아이디로 검색 전체게시물  (89.♡.186.26) 댓글 0건 조회 49회 작성일 25-10-08 23:41
PostCode SE11 4TF

본문

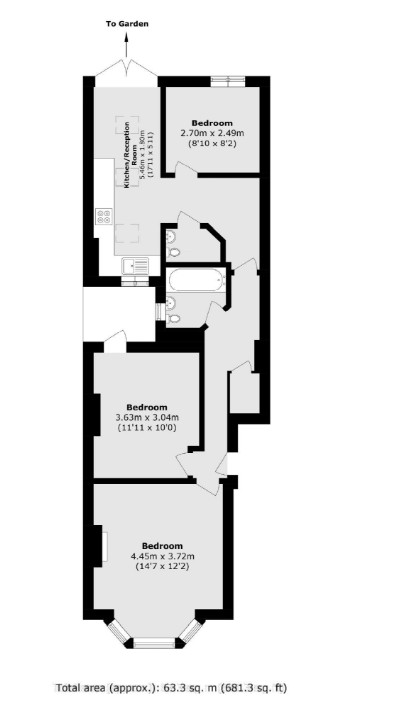
Great refurbished 2-3 bedroom flat with rear garden in Central London

 

This charming 2-3 bedroom ground floor flat is located in a quiet side street next to LCC/ Southbank University and Elephant & Castle station (2 minutes’ walk).

The flat has been refurbished and is perfect for people who are looking for a lovely place with great amenities, flexibility, outdoor space and great central location.

 

The flat has 3 separate rooms and a kitchen dining room at the rear and offers lots of flexibility: see floor plan for details

Option 1: it can be used as a 2 bedroom flat with large reception room and kitchen dining room at the rear

Option 2: it can be used as a 3 bedroom flat with kitchen dining room at the rear

The flat has been refurbished and has 1 full bathroom, 1 extra WC/utility room and 1 extra storage room.

The flat offers 680 sq. ft. of well-designed living space and also comes with a lovely rear garden to chill out or have a BBQ.

In addition it offers great amenities such as furniture, new combi boiler, EPC rating C, Council Tax Band C and many more.

 

The flat is available from 15th November 2025 (earlier availability needs to be confirmed yet)

Please arrange viewings via OpenRent or leave a message to 07990 655456 (kakao/whatsapp) with your brief introduction.
비추천0
  • 트위터로 보내기
  • 페이스북으로 보내기

댓글목록

등록된 댓글이 없습니다.

Total 4,523건 1 페이지
런던 E/EC/SE 목록
번호 제목 글쓴이 조회 날짜
공지 공지 운영자 쪽지보내기 메일보내기 홈페이지 자기소개 아이디로 검색 전체게시물 1304 2025-06-18
공지 공지 운영자 쪽지보내기 메일보내기 홈페이지 자기소개 아이디로 검색 전체게시물 2203 2024-06-08
공지 공지 운영자 쪽지보내기 메일보내기 홈페이지 자기소개 아이디로 검색 전체게시물 45670 2015-11-28
열람중 장기 no_profile FantasticLondon 쪽지보내기 메일보내기 자기소개 아이디로 검색 전체게시물 50 2025-10-08
4519 장단기 no_profile 열공하는학생 쪽지보내기 메일보내기 자기소개 아이디로 검색 전체게시물 77 2025-10-08
4518 구함 no_profile 예전런더너 쪽지보내기 메일보내기 자기소개 아이디로 검색 전체게시물 40 2025-10-08
4517 구함 no_profile koookie 쪽지보내기 메일보내기 자기소개 아이디로 검색 전체게시물 72 2025-10-08
4516 장단기 no_profile ajsheuensn 쪽지보내기 메일보내기 자기소개 아이디로 검색 전체게시물 134 2025-10-08
4515 단기 no_profile londonsarayong 쪽지보내기 메일보내기 자기소개 아이디로 검색 전체게시물 76 2025-10-08
4514 구함 no_profile Seansss 쪽지보내기 메일보내기 자기소개 아이디로 검색 전체게시물 72 2025-10-07
4513 no_profile skthf 쪽지보내기 메일보내기 자기소개 아이디로 검색 전체게시물 136 2025-10-07
4512 장기 no_profile felicja 쪽지보내기 메일보내기 자기소개 아이디로 검색 전체게시물 185 2025-10-07
4511 no_profile 토리8686 쪽지보내기 메일보내기 자기소개 아이디로 검색 전체게시물 135 2025-10-06
4510 장단기 no_profile 클래버 쪽지보내기 메일보내기 자기소개 아이디로 검색 전체게시물 162 2025-10-06
4509 단기 no_profile Jeaiii 쪽지보내기 메일보내기 자기소개 아이디로 검색 전체게시물 152 2025-10-06
4508 no_profile 무지성미대생 쪽지보내기 메일보내기 자기소개 아이디로 검색 전체게시물 149 2025-10-05
4507 구함 no_profile 누아 쪽지보내기 메일보내기 자기소개 아이디로 검색 전체게시물 69 2025-10-05
4506 운영자 쪽지보내기 메일보내기 홈페이지 자기소개 아이디로 검색 전체게시물 72 2025-10-05
4505 단기 no_profile greenwichP 쪽지보내기 메일보내기 자기소개 아이디로 검색 전체게시물 208 2025-10-05
4504 단기 no_profile lIlIlIlI 쪽지보내기 메일보내기 자기소개 아이디로 검색 전체게시물 249 2025-10-04
게시물 검색
내가 쓴 글 보기
숙박
런던 N/NW
런던 SW/W/WC
런던 E/EC/SE
Greater London(KT/SM/etc)
기타지역